Inghelosenberghe 30 in Sint Jansteen -
€375.000,- k.k.
Omschrijving
Vrijstaand en levensloopbestendig wonen in hartje Sint Jansteen
Deze fraaie vrijstaande woning combineert ruimte, comfort en toekomstbestendig wonen op een natuurlijke manier. Met drie slaapkamers, een inpandige garage en een berging biedt het genoeg mogelijkheden voor een gezin of voor wie graag comfortabel gelijkvloers wil wonen. Hier voel je je meteen welkom; een huis dat uitnodigt om er echt je thuis van te maken.
Gelegen in het rustige Sint Jansteen, sta je letterlijk midden in het dorp. De bakker, supermarkt, school en het sportcomplex liggen allemaal op een steenworp afstand, terwijl steden als Hulst, Gent en Antwerpen snel bereikbaar zijn. Hier woon je in een fijne, dorpse sfeer, met alles wat je nodig hebt letterlijk binnen handbereik.
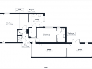
Indeling:
Begane grond:
Bij binnenkomst via de hal valt meteen de praktische indeling op. Het toilet met fonteintje is handig geplaatst en vanuit de hal bereik je de woonkamer en de slaapkamer op de begane grond. De L-vormige woonkamer is licht en ruim en biedt een prettige leefruimte. Aansluitend vind je de halfopen keuken, met een ruime bergkast en toegang tot de achtertuin. De slaapkamer op de begane grond geeft directe toegang tot de badkamer, die voorzien is van een douche, ligbad en wastafel. Zo is wonen op de begane grond zowel praktisch als comfortabel.
De zonnige tuin rondom de woning is een fijne plek om buiten te zijn. Met een netjes aangelegd terras en zorgvuldig onderhouden borders voelt het hier prettig en verzorgd. Dankzij de vrije achterom is de tuin makkelijk bereikbaar, en de ligging op het westen zorgt voor middag- en avondzon. De aangebouwde stenen garage en de berging daarachter bieden veel praktische ruimte, ideaal voor fietsen, gereedschap of opslag.
Eerste verdieping:
Op de eerste verdieping vind je een overloop met vaste kast en twee ruime slaapkamers, elk voorzien van vaste kasten. Zo is er voldoende opbergruimte en privacy voor iedereen. De indeling maakt de verdieping overzichtelijk en licht.
Bijzonderheden:
- Energielabel B
- Voorzien van dak-, muur- en vloerisolatie
- Voorzien van 14 zonnepanelen
- Warm water en verwarming door middel van C.V.-combiketel uit 2011
- Voorzien van deels kunststof kozijnen en dubbelglas
Deze woning biedt alles wat je zoekt in een levensloopbestendig huis: ruimte, comfort, praktisch gemak en een warme, uitnodigende sfeer. Met een zonnige tuin, een inpandige garage en een centrale ligging in het dorp, is dit de plek waar je echt thuiskomt. Hier kun je wonen, genieten en herinneringen maken ? een huis dat klaar is om jouw thuis te worden.
Kenmerken
- Adres
- Inghelosenberghe 30
- Postcode
- 4564 DH
- Type
- Vrijstaande woning
- Bouwjaar
- 1993
- Aantal kamers
- 4
- Aantal slaapkamers
- 3
- Perceel oppervlakte
- 470m²
- Oppervlakte woonruimte
- 105m²
- Inhoud
- 364m³
- Tuin
- Ja
- Garage aanwezig
- Ja
- Verwarming
- cv ketel
- Vraagprijs
- € 375.000,- k.k.

