van Steenbergenlaan 2 in Terneuzen -
€199.500,- k.k.
Omschrijving
Multifunctioneel pand met legio mogelijkheden!
Op zoek naar een bijzonder object met karakter en volop mogelijkheden? Deze voormalige dansschool biedt een verrassende combinatie van ruimte en potentie. De grote open ruimte beneden biedt ongekende mogelijkheden, terwijl de verdieping een praktische indeling en toegang tot een dakterras biedt.
De ligging maakt het plaatje compleet. Op een steenworp afstand bevinden zich supermarkten, winkels en horecagelegenheden, waardoor je alles wat je dagelijks nodig hebt binnen handbereik hebt. Bovendien ben je direct in het centrum, met al zijn voorzieningen en levendigheid.
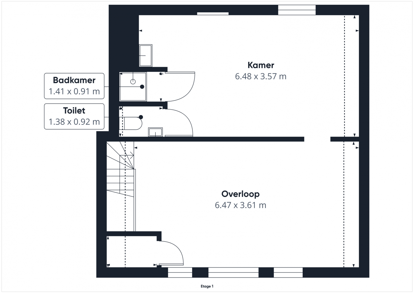
Indeling:
Begane grond:
Bij binnenkomst stap je de hal in, waar ook de trapopgang en een handige trapkast te vinden zijn. Vanuit hier loop je door naar de royale dansstudio die tot voor kort het hart van deze locatie vormde. De ruimte is indrukwekkend groot en biedt tal van mogelijkheden voor herinrichting of alternatief gebruik. Aan de achterzijde is een nooduitgang die toegang geeft tot de brandgang en achtertuin.
De tuin biedt ook volop mogelijkheden. Met wat creativiteit kun je hier een fijne plek cre
Kenmerken
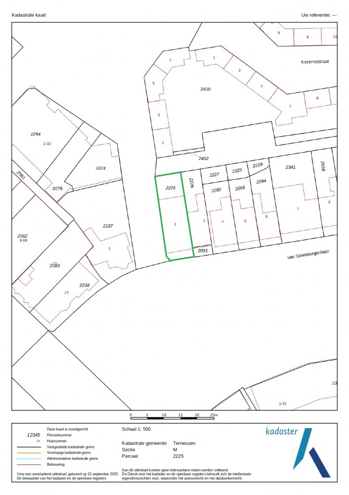
- Adres
- van Steenbergenlaan 2
- Postcode
- 4531 HJ
- Type
- Halfvrijstaande woning
- Bouwjaar
- 1930
- Aantal kamers
- 2
- Aantal slaapkamers
- 1
- Perceel oppervlakte
- 205m²
- Oppervlakte woonruimte
- 165m²
- Inhoud
- 525m³
- Tuin
- Ja
- Garage aanwezig
- Nee
- Verwarming
- cv ketel
- Vraagprijs
- € 199.500,- k.k.