Livingstonestraat 68 in Hulst -
€415.000,- k.k.
Omschrijving
Modern en licht wonen aan het water
Instapklaar, licht en tot in de puntjes verzorgd: deze geschakelde 2^1-kapwoning in de geliefde wijk ?Groote Kreek? biedt comfortabel wonen met een moderne uitstraling. De woning is praktisch ingedeeld en benut de beschikbare ruimte optimaal. Dankzij de grote ramen en de gunstige ligging op het zuiden geniet je hier de hele dag van een fijne lichtinval. De inpandig bereikbare garage biedt volop mogelijkheden voor opslag, hobby?s of het stallen van de auto.
De ligging aan de rand van de wijk is bijzonder aangenaam. Vanuit de woning kijk je uit over het water en wandel je zo de groene omgeving in. Tegelijkertijd woon je op slechts enkele minuten fietsen van het bruisende centrum van Hulst. Scholen, supermarkten, sportverenigingen en andere voorzieningen liggen allemaal dichtbij. Hier vind je de rust van een groene woonwijk, zonder in te leveren op gemak en bereikbaarheid.
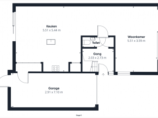
Indeling:
Begane grond:
Via de hal met meterkast en toilet bereik je de lichte doorzonkamer, waar het daglicht vrij spel heeft. Aan de voorzijde bevindt zich de gezellige woonkamer in L-opstelling, terwijl aan de achterzijde de moderne keuken met inbouwapparatuur en een stijlvol spoeleiland is gesitueerd. De schuifpui naar de tuin zorgt voor een vloeiende overgang tussen binnen en buiten, waardoor het wooncomfort nog verder toeneemt. Tussen de keuken en de garage ligt een praktische bergruimte met schuifdeuren, ideaal voor voorraad of huishoudelijke spullen. De inpandig bereikbare garage is voorzien van een wateraansluiting, witgoedaansluitingen en een elektrische deur.
De tuin vormt een heerlijk verlengstuk van de woning. Dankzij de ligging op het zuiden geniet je hier volop van de zon, terwijl het terras uitnodigt tot lange avonden buiten. Het verzorgde gazon en de beschutte zithoek onder de platanen zorgen voor een prettige afwisseling tussen zon en schaduw. Een ideale plek om te ontspannen of gezellig te tafelen met familie en vrienden.
Eerste verdieping:
Op de eerste verdieping bevinden zich de overloop, twee royale slaapkamers en een praktische berging/stookruimte. Beide slaapkamers strekken zich uit over de volledige breedte van de woning, waardoor ze opvallend ruim en licht zijn. Door de overloop iets uit te breiden, is er eenvoudig een derde slaapkamer te realiseren. De moderne badkamer is netjes afgewerkt en beschikt over een ligbad, douche, wastafelmeubel en tweede toilet.
Bijzonderheden:
- Energielabel A
- Voorzien van dak-, muur- en vloerisolatie
- Warm water en verwarming door middel van C.V.-combiketel uit 2023
- Voorzien van hardhouten kozijnen met dubbelglas
Een instapklare woning op een prachtige locatie aan de rand van Hulst, waar comfort, rust en bereikbaarheid samenkomen. Zie jij jezelf hier al wonen? Maak dan snel een afspraak voor een bezichtiging en ervaar zelf de ruimte, het licht en de fijne sfeer die deze woning te bieden heeft.
Kenmerken
- Adres
- Livingstonestraat 68
- Postcode
- 4562 BB
- Type
- GESCHAKELDE_TWEE_ONDER_EEN_KAPWONING
- Bouwjaar
- 2005
- Aantal kamers
- 3
- Aantal slaapkamers
- 2
- Perceel oppervlakte
- 258m²
- Oppervlakte woonruimte
- 123m²
- Inhoud
- 351m³
- Tuin
- Ja
- Garage aanwezig
- Ja
- Verwarming
- cv ketel
- Vraagprijs
- € 415.000,- k.k.

