Wilhelminastraat 7 in Hoek -
€200.000,- k.k.
Nieuw
Bekijk alle foto's
Omschrijving
Leuke hoekwoning met potentie ? cre
Kenmerken
- Adres
- Wilhelminastraat 7
- Postcode
- 4542 AR
- Type
- Hoekwoning
- Bouwjaar
- 1963
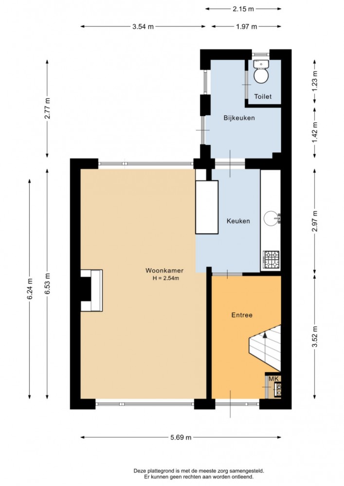
- Aantal kamers
- 3
- Aantal slaapkamers
- 2
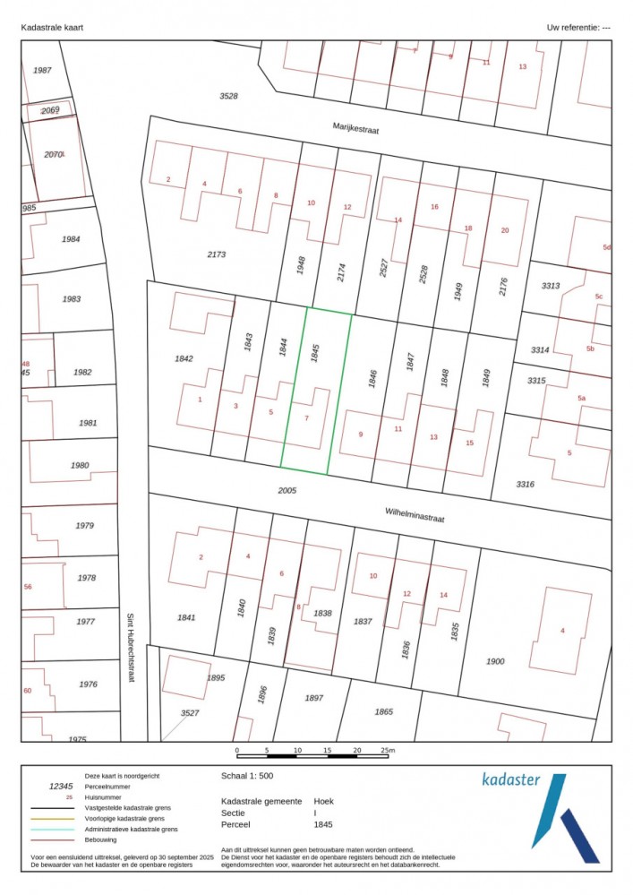
- Perceel oppervlakte
- 205m²
- Oppervlakte woonruimte
- 81m²
- Inhoud
- 339m³
- Tuin
- Ja
- Garage aanwezig
- Ja
- Verwarming
- cv ketel
- Vraagprijs
- € 200.000,- k.k.

