Zaanstraat 19 in Terneuzen -
€595.000,- k.k.
Omschrijving
Thuiskomen in ruimte en luxe ? hier wil je wonen!
Deze vrijstaande woning biedt alles wat je zoekt: licht, ruimte en een moderne afwerking die direct uitnodigt om binnen te stappen. Met vijf volwaardige slaapkamers is er plek voor het hele gezin, gasten of een thuiskantoor, en de lichte woonkamer vormt het hart van het huis. Hier voel je meteen de fijne sfeer, terwijl de verzorgde afwerking een instapklaar gevoel geeft. Extra praktisch zijn de inpandige garage en ruime oprit, waardoor wonen hier niet alleen comfortabel, maar ook heel gemakkelijk is. Het ruime buitenverblijf en de fraai aangelegde tuin met het plaatje helemaal compleet!
Gelegen in een rustige, kindvriendelijke straat met een groot stadspark (in aanleg) om de hoek, woon je hier heerlijk rustig terwijl alle voorzieningen dichtbij zijn. Scholen, sportgelegenheden, winkels en medische zorg liggen op korte afstand. Zo geniet je van ruimte en rust, zonder dat je moet inleveren op bereikbaarheid.
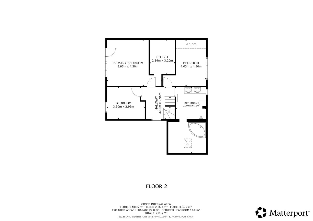
Indeling:
Begane grond:
Bij binnenkomst in de hal valt direct de verzorgde uitstraling op. Vanuit hier bereik je de trapopgang, de meterkast en een modern toilet met fonteintje. De L-vormige doorzonwoonkamer voelt licht en ruim aan, met een sfeervolle sierhaard en een eethoek met prachtig uitzicht op de achtertuin. De zwarte U-keuken is van alle gemakken voorzien en biedt toegang tot de bijkeuken, die weer doorloopt naar de inpandige garage ? ideaal voor fietsen, opslag of een extra werkruimte.
De achtertuin voelt als een verlenging van het huis. Met een terras, groen
Kenmerken
- Adres
- Zaanstraat 19
- Postcode
- 4535 GL
- Type
- Vrijstaande woning
- Bouwjaar
- 1985
- Aantal kamers
- 6
- Aantal slaapkamers
- 5
- Perceel oppervlakte
- 540m²
- Oppervlakte woonruimte
- 167m²
- Inhoud
- 655m³
- Tuin
- Ja
- Garage aanwezig
- Ja
- Verwarming
- cv ketel, vloerverwarming gedeeltelijk, gashaard
- Vraagprijs
- € 595.000,- k.k.

