Hoogaarswerf 1 in Terneuzen -
€485.000,- k.k.
Nieuw
Bekijk alle foto's
Omschrijving
Moderne, goed onderhouden woning met inpandige garage en zonnige tuin!
In de jonge en waterrijke wijk Othene Zuid staat deze fraaie geschakelde halfvrijstaande woning met witte gevels, donkere kozijnen en een verzorgde uitstraling. De woning biedt verrassend veel ruimte, is energiezuinig en biedt de mogelijkheid tot gelijkvloers wonen dankzij de slaapkamer en badkamer op de begane grond.
De woning is gebouwd in 2019 op een perceel van 235 m
Kenmerken
- Adres
- Hoogaarswerf 1
- Postcode
- 4533 JG
- Type
- Geschakelde woning
- Bouwjaar
- 2019
- Aantal kamers
- 4
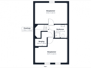
- Aantal slaapkamers
- 3
- Perceel oppervlakte
- 235m²
- Oppervlakte woonruimte
- 141m²
- Inhoud
- 550m³
- Tuin
- Ja
- Garage aanwezig
- Ja
- Verwarming
- cv ketel
- Vraagprijs
- € 485.000,- k.k.

